ok je vais supprimer l'épaulement dans ce cas et voir quel type de joint spi mettre,
A quoi servent les flasques de chaque coté du galet?


alexouilledu91 a écrit:ok je vais supprimer l'épaulement dans ce cas et voir quel type de joint spi mettre,
A quoi servent les flasques de chaque coté du galet?



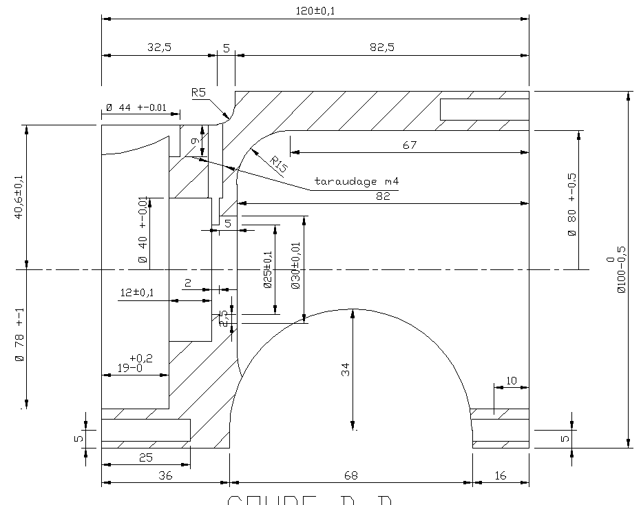
harrondo a écrit::salut: , tes taraudages ne le paraissent pas assez profond. Hadrien







solex166 a écrit:euh............soit je ne comprends pas bien le plan, soit ton trou de lub n'est pas au bon endroit![]()
il doit arriver de l'intérieur de ton carter, là ou descend la jupe de piston, en gros à 45 degrés vers la gauche si tu pars du meme point en bas. diamètre 2 mm ça suffit pour ce trou qui n'a rien d'obligatoire!
pour les taraudages, tu passe de 10 à 25 mm, si ça passe partout pourquoi pas, mais déjà 15 à 20 mm c'est pas mal je pense.
c'est bien de voir qu'il y en a qui bossent cet hiver!![]()
matthieu



Retourner vers Préparation mécanique base origine
Utilisateurs parcourant ce forum: Aucun utilisateur enregistré et 29 invités